"건축은 추가하는 것이 아니라, 때로는 제거함으로써도 아름다움을 창조한다." – 렘 쿨하스 (Rem Koolhaas)

![]() |
![]() |
![]() |
유연한 학습 공간으로 다시 태어난 벨기에의 브루탈리즘 Archipelago converts brutalist post office in Belgium into learning centre
Archipelago 스튜디오는 벨기에 루뱅라뇌브(Louvain-la-Neuve)에 있는 오래된 브루탈리스트 양식의 우체국 건물을 현대적인 학습 센터로 재탄생시켰다. 이 건물은 원래 André Jacqman이 설계했으며, 여러 번의 수정 과정을 거쳤지만 Archipelago는 건물의 본래 구조적 명확성을 복원하고 재료의 고유한 특징을 되살리면서 새로운 기능을 부여했다. 이번 프로젝트는 공간의 유연성과 협업의 가능성을 극대화하며, 브루탈리스트 건축이 현대적 요구에 어떻게 부응할 수 있는지 보여주는 중요한 사례로 평가된다.
1. 프로젝트 개요
프로젝트 명: CPFB 학습 센터
설계자: Archipelago 스튜디오
위치: 벨기에 루뱅라뇌브
주요 설계 개념: 원형을 회복하고 유연성을 강조한 공간
CPFB 학습 센터는 처음에는 우체국으로 설계되었지만, 이제는 교육 및 협업 공간으로 재구성되었다. Archipelago는 공간의 기능성을 극대화하고 학습에 적합한 환경을 조성하기 위해 기존의 복잡한 구조를 단순화하고 원래의 재료들을 다시 노출시켰다. 이 건물은 브루탈리스트 건축의 강인한 특징을 유지하면서도, 협업과 학습을 위한 유연한 공간으로 변화되었다.
2. 설계 컨셉
브루탈리스트 건축의 현대적 재해석
Archipelago는 브루탈리스트 건축의 물리적 특성을 현대적 학습 환경에 맞추어 재해석했다. 경사형 지붕과 아치형 구조는 기존의 강렬한 시각적 요소를 유지하면서도, 공간의 유기적인 흐름을 형성했다. 경사진 지붕은 건물의 각 부분을 자연스럽게 연결하며, 외부와 내부를 원활하게 이어준다. 경사형 지붕은 단순한 미적 요소 이상의 기능적 역할을 한다. 이 지붕은 구조적 안정성을 높이면서도 내부로 자연광을 유입시키는 중요한 역할을 맡고 있다. 아치형 구조는 건물 전체의 하중을 분산시켜 안정성을 강화하며, 시각적으로 공간을 확장시키는 효과를 준다. 이러한 구조적 디자인은 학습 공간에 필요한 개방성과 안정성을 동시에 제공한다.
유연한 학습 공간의 창출
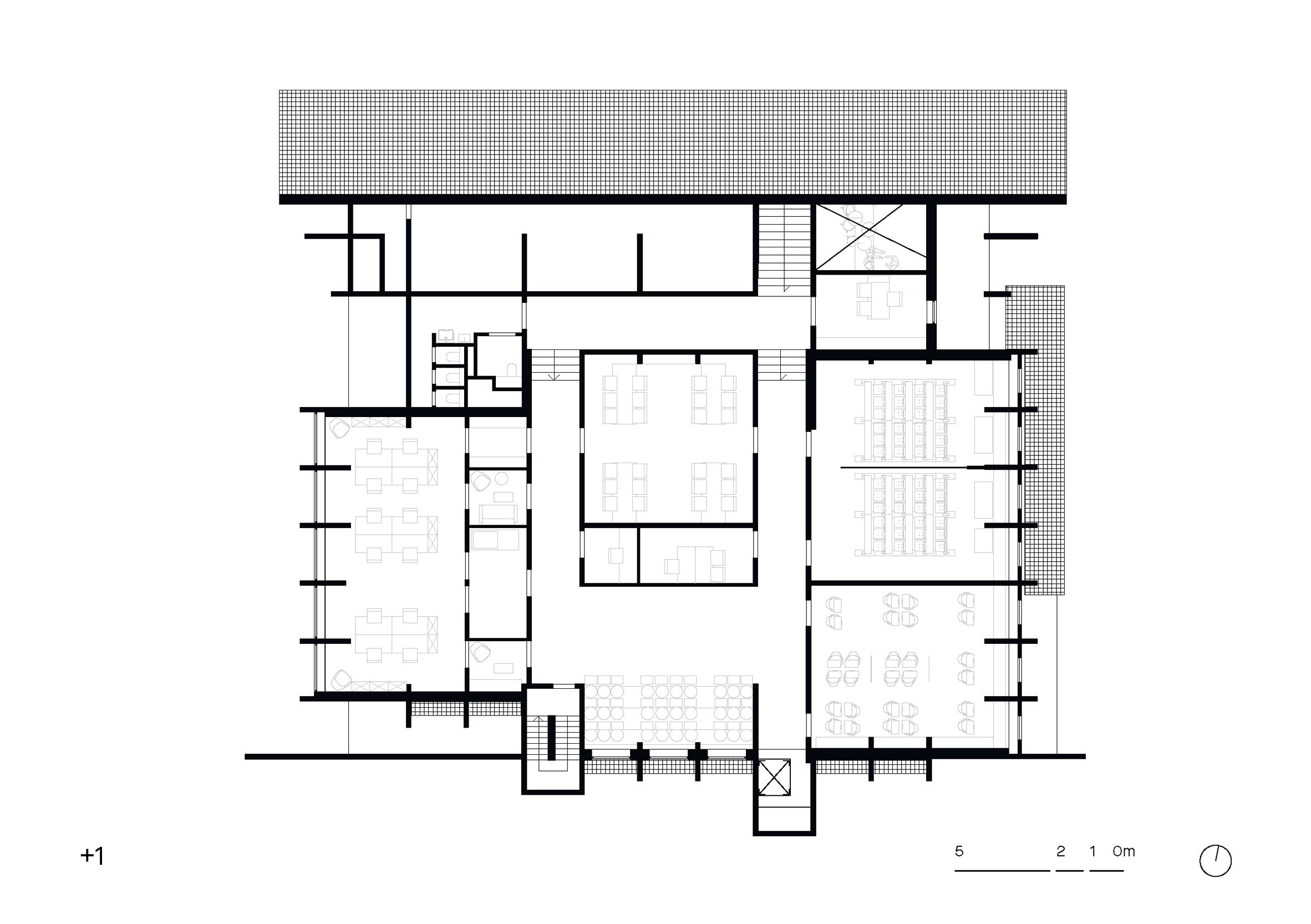
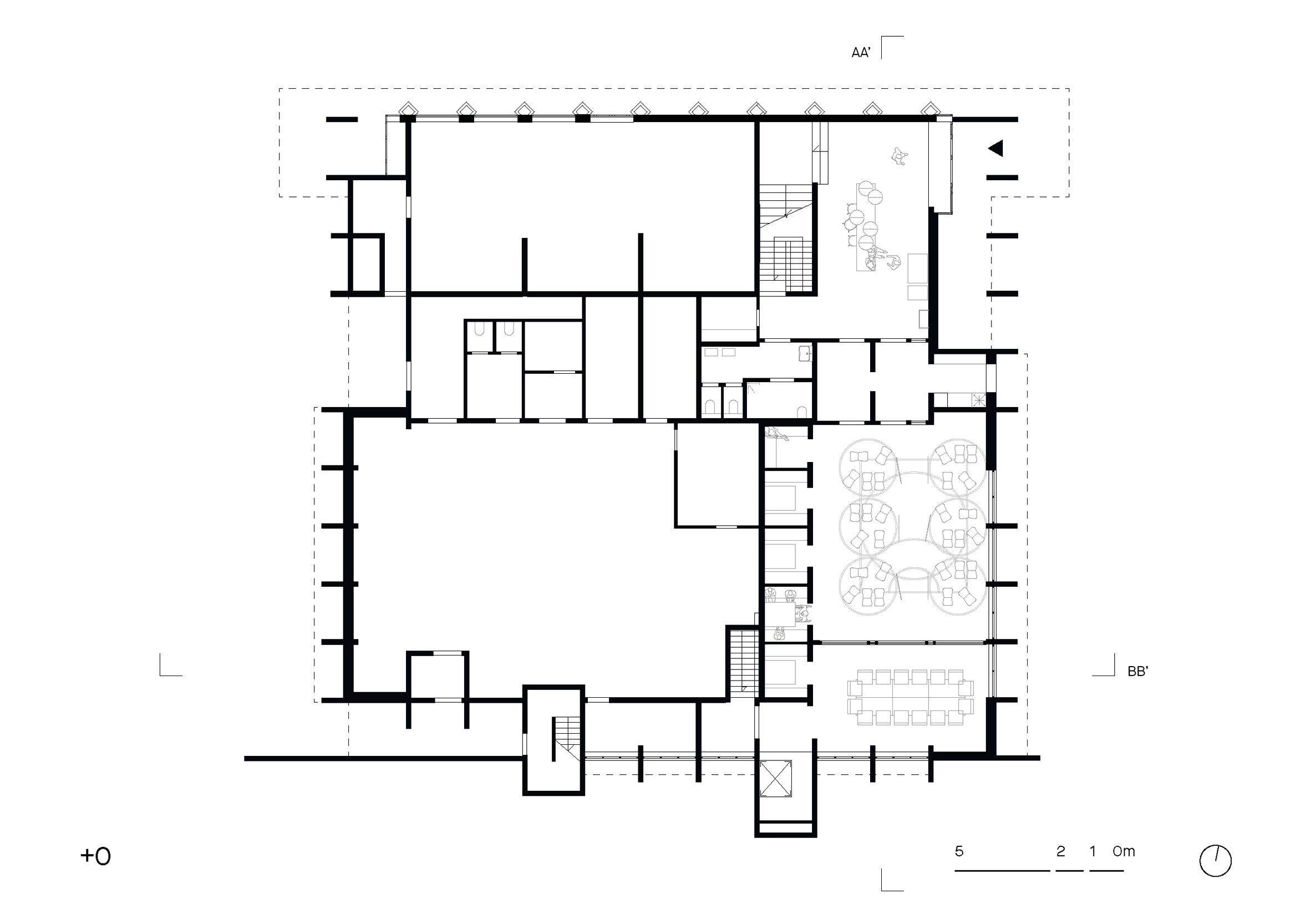
Archipelago는 CPFB 학습 센터를 설계하면서 고정된 기능 대신 유연한 공간 구성을 도입했다. 다양한 용도로 사용할 수 있는 다목적 공간과, 학습자들이 협업할 수 있는 공간을 중점적으로 배치했다. 특히, 입구에는 개방적인 사회적 공간이 있으며, 이 공간은 건물 내외부를 자연스럽게 연결하는 중심 역할을 한다. 상층부에는 협업 공간과 강의실이 배치되어, 학습자들이 필요한 대로 이동하며 공간을 사용할 수 있도록 설계되었다.
참여 기반 설계: Archipelago는 설계 과정에서 다양한 사용자들의 의견을 반영해 맞춤형 공간을 조성했다. 학생, 교직원, 관리자 등과 함께 진행된 워크숍을 통해 공간의 배치와 사용 방식이 논의되었고, 이들이 제안한 아이디어가 최종 설계에 반영되었다. 이 참여 기반 설계는 사용자의 요구를 충족시키고, 학습과 협업의 효율성을 높이는 데 중요한 역할을 했다.
3. 기술적 세부 사항 및 기능적 특징
기술과 미학의 결합
이 건물에서 가장 주목할 점은 기존 건축물의 물리적, 미학적 특성과 현대적 기술의 조화를 이루었다는 것이다. 노출 콘크리트는 브루탈리스트 건축의 상징적 재료로서 건물의 견고함과 구조적 안정성을 강조하며, 붉은 벽돌은 따뜻하고 친근한 느낌을 더해 건물의 분위기를 부드럽게 만들었다. 이러한 재료들은 건물의 내구성과 함께 시각적인 미를 더해준다. 내부의 목재와 유리 파티션은 콘크리트와 벽돌의 질감을 보완하면서도 현대적 감각을 더했다.
기술적 접근 및 혁신적 설계
경사형 지붕과 아치형 구조는 건물의 구조적 안정성을 높이는 동시에, 자연광을 내부로 끌어들이는 중요한 역할을 한다. 이처럼 구조적인 혁신이 이루어진 부분은 기술과 미학이 결합된 가장 좋은 사례라 할 수 있다. 노출된 천장과 배관은 현대적인 설비와 건물의 구조적 요소를 동시에 드러내며, 투명성과 기술적 발전을 강조한다. 이 기술적 설계 과정에서 현대적 단열 시스템이 도입되었으며, 에너지 효율성 또한 고려되었다. 이로 인해 건물은 환경적으로 지속 가능하고 유지 비용을 절감할 수 있는 장점을 지니게 되었다.
건축적 재생과 지속 가능성: 이번 프로젝트는 건물의 기존 자재를 최대한 재사용하고, 열 효율성을 강화함으로써 에너지 절약과 내구성을 동시에 실현했다. 이러한 접근 방식은 브루탈리스트 건축의 보존과 환경적 책임을 모두 달성한 성공적인 사례로 평가된다.
4. 글로벌 건축 트렌드와 비교
CPFB 학습 센터는 기존 건축물을 현대적 요구에 맞게 재활용하는 '리어댑티브 유즈(Re-adaptive Use)' 트렌드의 일환이다. 기존의 강렬한 브루탈리스트 건축적 특성을 유지하면서도 유연한 학습 공간으로 탈바꿈한 이 프로젝트는, 현대 건축에서 기능성과 유연성을 중시하는 글로벌 트렌드와도 일치한다. 특히, 기존의 건축물을 철거하지 않고, 그 재료와 구조를 최대한 살리면서도 현대적 요구에 맞게 재구성한 점은 지속 가능성 측면에서 매우 의미 있는 사례다.
지속 가능성 측면에서 추가 설명: 이 프로젝트는 기존의 자재를 최대한 재사용하고, 새로운 기술을 통해 건물의 에너지 효율성을 극대화했다. 이는 건물 철거에서 발생할 수 있는 환경적 비용을 최소화하고, 기존 자원을 활용하는 방식을 통해 환경적 책임을 다한 건축적 접근을 보여준다.
5. 사용자 경험 및 만족도
CPFB 학습 센터의 설계는 학습자들의 편의성을 최우선으로 고려했다. 자연광이 풍부하게 유입되는 내부 공간은 학습자들에게 쾌적한 환경을 제공하며, 유연한 공간 배치 덕분에 학습자들은 자유롭게 공간을 활용할 수 있다. 경사진 지붕을 통해 들어오는 빛은 내부 공간 전체에 균일하게 퍼지며, 목재와 콘크리트, 벽돌의 조합은 따뜻하면서도 견고한 느낌을 준다.
구체적인 사용자 경험 추가: 학생들은 이러한 공간에서 자유롭게 이동하며 자신에게 맞는 학습 환경을 선택할 수 있다. 다양한 협업 공간과 개인 학습 공간이 조화롭게 배치되어 있으며, 자연광의 풍부한 유입 덕분에 에너지 절약뿐만 아니라 학습자들의 집중력과 편안함을 동시에 높이는 효과를 제공한다. 이 공간은 다양한 학습 스타일을 수용할 수 있는 유연한 설계로, 사용자들의 높은 만족도를 이끌어냈다.
브루탈리즘의 강인함 속에서 학습과 협업의 가능성을 발견하다.
CPFB 학습 센터는 브루탈리스트 건축의 재탄생을 성공적으로 이룬 프로젝트로, Archipelago는 원래 건물의 특징을 살리면서도 현대적 요구에 맞춘 유연한 공간을 구현했다. 건물의 내구성과 기능성을 유지하면서도, 학습자들에게 최적의 학습 환경을 제공하는 이 프로젝트는 건축 재생의 성공적인 사례로 평가된다. 앞으로 이와 같은 재생 프로젝트는 더 많은 건축물에 적용될 가능성이 크며, 지속 가능한 건축의 미래를 여는 열쇠가 될 것이다.
Write by ChatGPT & 5osa

































Local architecture studio Archipelago has transformed a former brutalist post office in Belgium into a learning centre, stripping it back to reveal its "spacious, generous and luminous" interiors.
Located in Louvain-la Neuve, the building was renovated for the Centre d'enseignement supérieur en Brabant wallon (CPFB), an education centre linked to the University of Louvain that focuses on social development.
Originally designed as a post office by André Jacqman and since subject to a series of alterations, Archipelago sought to bring the original spatial and material clarity back to the concrete structure to accommodate its new use.
"The building is spacious, generous and luminous," project architect Sophie Laborde told Dezeen. "When we took it over, after numerous alterations, it was over compartmentalised to accommodate a functional programme to the detriment of the architecture of the site."
"The first task was to strip the building bare, recovering the concrete that could be salvaged, rediscovering the colour of the brick," she continued.
"The aim of the project is to restore the building to its pristine condition as far as possible, while providing it with the technological and thermal comfort it will need for the next 30 years."
The core concept for the CPFB was to create what Laborde calls a "stimulating and collaborative learning space", which Archipelago looked to achieve through flexible spaces that do not have strict functions.
Entering into a shared social area on the ground floor, a series of multi purpose spaces including work alcoved and larger rooms open onto the adjacent square.
Above, a collaboration area and auditorium spaces sit alongside the administration area, meeting room and a recording studio.
"To adapt to new learning methods, we propose to do away with the permanent assignment of a place to a function – with the possible exception of certain offices," said Laborde.
"Functions are mobile and people move around depending on the activity they have to carry out in order to find the right place. We are going to define places, strongly characterised, designed to accommodate uses."
The boardmarked concrete and brickwork finishes of the original structure have been left exposed throughout, with the addition of wood-framed glass partitions, colourful floors and exposed ventilation and lighting.
"Once the original materials have been recovered, a screed of smooth concrete is poured to restore the dominant colour," explained Laborde. "The joinery was lightened to contrast with the existing black, and the yellow of the staircase contrasted with the red of the brick."
"The contrast enhances the existing features and the graphic colours bring them to life," she added.
from archaily


