
![]() |
![]() |
![]() |
office aaa-Tung Yuan Kindergarten
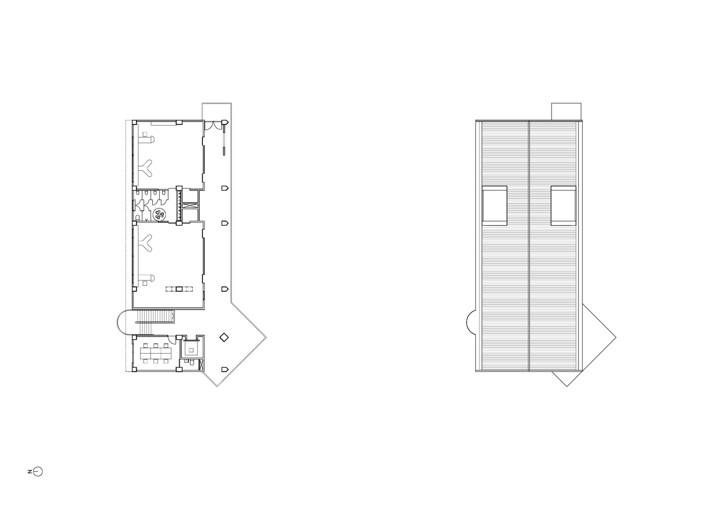
탕 위엔 유치원은 타이중 시 외곽의 산업 지역에 위치한 2층 콘크리트 건물입니다. 총 층면적은 725m2로, 이 작품은 아이들이 공간을 이해하고 상상할 수 있도록 유도합니다. 구조와 구성요소, 규모와 장소의 조화로운 배치를 통해, 학교 건물을 통해 건축의 본질적인 가치를 다시 발견할 수 있습니다.
건물은 캠퍼스 북서쪽 구석에 자리하고 있으며, 기존 6m 도로와 약 45도의 각도를 이룹니다. 건물 구성은 도로에 따라 조정되고, 들어가는 입구 캐노피는 기존 캠퍼스 축에 맞추어 45도로 회전합니다.
이 캐노피는 2층에서 활동 테라스로 연결된 45도 기둥에 의해 지지됩니다. 정면은 이중 경사 지붕 윤곽을 가진 전통적인 집 모양으로 구성되어 있으며, 기존 건물과 인근 주택의 지붕과 조화를 이룹니다. 이 흰색 추상적인 파사드는 탕 위엔 유치원을 방문하는 이들의 첫 인상을 남깁니다.
2층에는 이중 경사 콘크리트 지붕을 지지하는 거대한 Y형 기둥이 있습니다. 이 기둥은 세 개의 동일한 크기의 기둥이 교차하여 형성되며, 지붕과 수직 관계를 이룹니다. 이 분할된 기둥 구조는 힘의 전달뿐만 아니라 큰 지붕의 무게를 인지하는 물리적 특성을 가지고 있습니다. 이 기둥은 밝은 노란색으로 칠해져 있어, 아이들의 학습 장소에서 눈에 잘 띄는 건축 요소가 됩니다.

























Tung Yuen Kindergarten is a 2 story concrete building located in an industrial neighbourhood at the outskirt of Taichung city. With total floor area of 725m2, this work attempts to construct children's cognition and imagination of space. Through the indivisible arrangement of structure and elements, scale and place, school architecture can also return to the introverted thinking of architecture itself.
This building is situated in the northwest corner of the campus, facing the existing 6M roadway, which forms an angle close to 45 degrees between the road and the existing building. The configuration of the building conforms to the road while the recessed entrance canopy is then turned 45 degrees to align the exiting campus axis.
This canopy is supported by a 45 degree column that forms the activity terrace on the 2nd floor. The front elevation is constructed as a typical archaic house shape with double pitched roof outline; it corresponds to the roof of the existing buildings and the domestic houses nearby. This white abstract façade becomes the first community's impression of Tung Yuen Kindergarten.
On the 2nd floor, there is a huge Y-shaped column that supports the double-pitched concrete roof. This Y shaped column is formed by the intersection of three same-sized columns, forming a perpendicular relationship with the roof. It is split column structure not only has the visual appearance of force transmission but also the physical feature of sensing the heaviness of the big roof. The column is then rendered in bright yellow, which turns it into a legible architectural element of this children’s learning place.
from archdaily


