
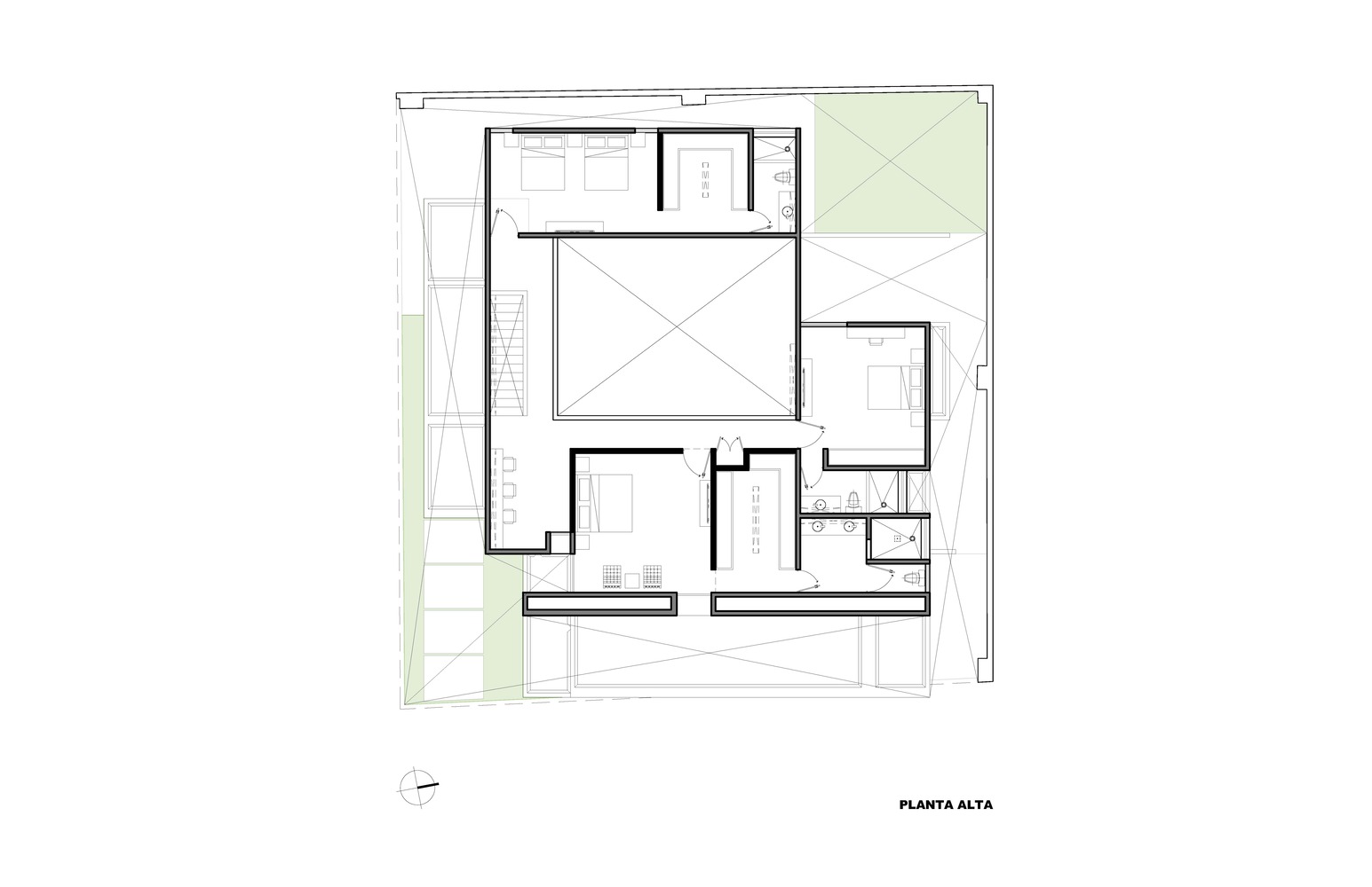
Jorge Garibay Arquitectos-Gómez House
카사 고메즈는 작은 가족을 위한 주택 프로젝트로, 특별한 공간적 요구 사항 없이 단순한 프로그램에 대응하는 프로젝트입니다.
고객과의 대화 과정에서 분석과 개념적 종합 과정을 거쳤고, 그 결과 형태를 통한 단순함과 무상함이라는 두 가지 특정 가치가 프로젝트의 주요 목표가 되었습니다.
이러한 개념적 가치는 최종 결과물을 얻기 위해 따라야 할 규칙으로 작용했습니다. 이후 디자인 프로세스는 변위와 파편화를 통해 형태에 질서를 부여하는 작업이었습니다.
translate by DeepL














Casa Gómez is a housing project for a small family that responds to a simple program without unusual spatial requirements.
During the conversations with the clients, a process of analysis and conceptual synthesis was carried out where two specific values emerged and became the main objective of the project: simplicity and impermanence through the form.
These conceptual values acted as rules to follow to achieve the final result. From there, the design process was an exercise of ordering the form through displacement and fragmentation.
We seek to create a rhythm of elements that respond to a formal and aesthetic agreement. This exercise answers to merely intuitive criteria to genuinely transmit these values.
from archdaily
'House' 카테고리의 다른 글
| *랜드 하우징 [ Space&Matter ] wij_land Housing (0) | 2023.12.21 |
|---|---|
| *미니멀 주택 [ ZROBIM architects ] Matski House (0) | 2023.12.14 |
| *체리밸리 [ StudioAC ] Cherry Valley (0) | 2023.12.06 |
| *그린하우스 Hayhurst and Co designs low-energy London home as "domestic-scale greenhouse" (0) | 2023.12.05 |
| *콘크리트 하우스 [ Croxatto y Opazo Arquitectos ] Lagunita House (0) | 2023.12.04 |