
![]() |
![]() |
![]() |
IF_DO-The Hithe Business Incubator Space
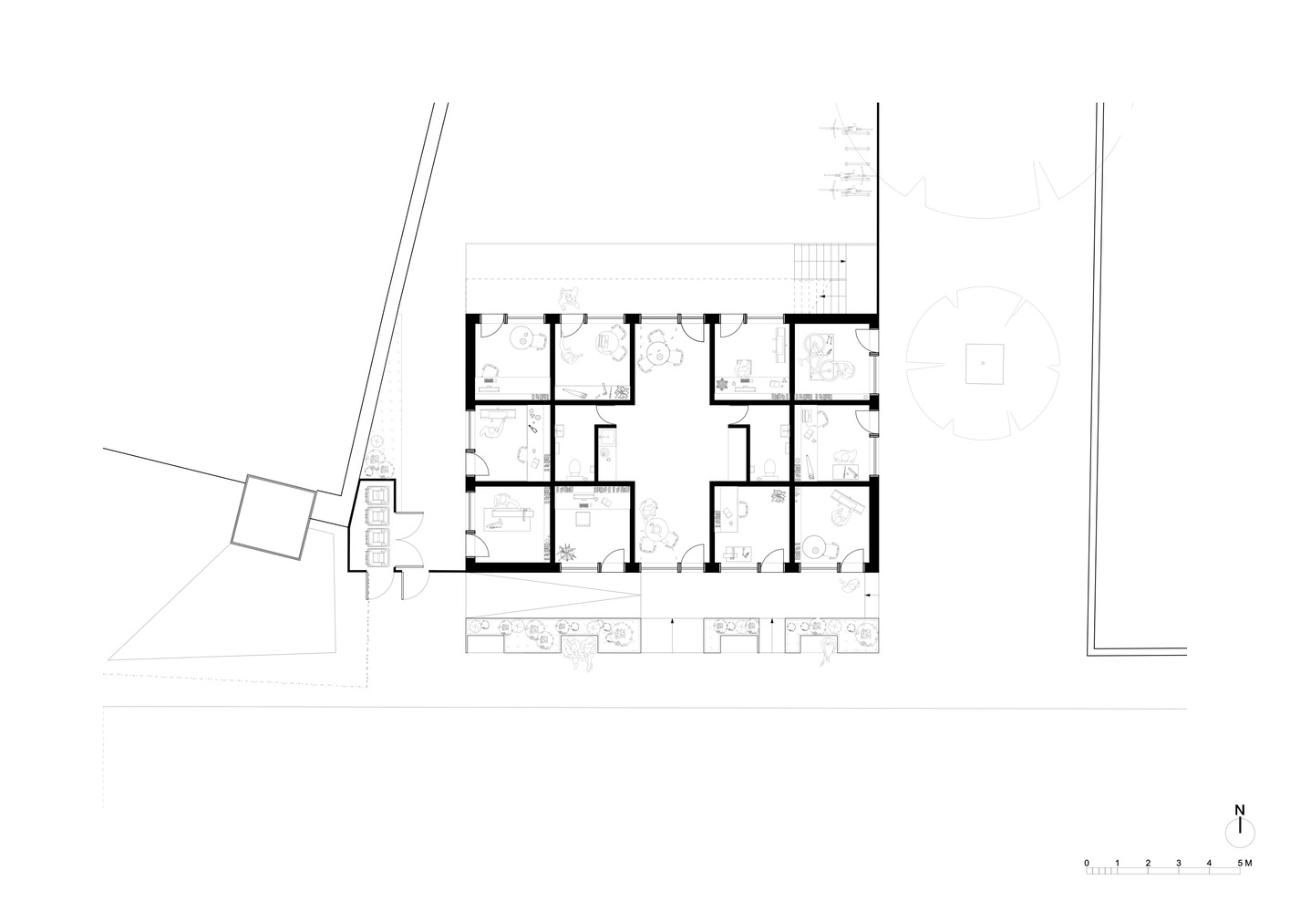
인큐베이터 스페이스. 초기 사업가들을 위한 열린 비즈니스 공간으로 12개의 독립적인 업무공간과 대형 회의공간으로 구성된다.

















The Hithe is a new, low cost, demountable business incubator space in Rotherhithe designed by IF_DO. The name, from Old English, describes a landing place or small port for ships and boats, making reference to the nautical history of the area fronting onto the Thames, and the building’s role in fostering nascent entrepreneurs.
Commissioned by Southwark Council, IF_DO has worked closely with the pioneering social enterprise Meanwhile Space CIC to bring a redundant site into productive use. The 200m2 building provides 12 units of workspace; the largest is occupied by Meanwhile Space.
The Hithe is the practice’s second project developed with Meanwhile Space, following the success of Granby Space, a 350m2 short term refurbishment on Lower Marsh, Waterloo, which has closed after five years. The Hithe represents a new departure for Meanwhile Space, as a new-build facility designed to be relocated. In this, its first iteration, it represents a new piece of social infrastructure for Rotherhithe: a community hub in a neighborhood undergoing rapid change.
The relatively small site is located on Albion Street, within the wider Rotherhithe masterplan area, and was identified by Southwark Council for meanwhile use of up to 11 years while the council develops plans for the area.
from archdaily
'Office' 카테고리의 다른 글
| *프리미어 오피스 [ Tropical Space ] Premier Office (1) | 2023.07.02 |
|---|---|
| *하베 오피스 [ Barkow Leibinger ] HAWE Office Building (0) | 2023.07.02 |
| *타스트럽 시티홀 [ PLH Arkitekter-Høje ] Taastrup City Hall (52) | 2023.05.31 |
| *탈리에신 건축스튜디오 [ Taliesyn Design & Architecture ] Taliesyn 123 Office (0) | 2023.05.25 |
| *오픈플랜, 오피스랜드스케이프 [ JSPA Design ] Shenzhen Yeahka C4 Office Design (12) | 2023.03.17 |


