
![]() |
![]() |
![]() |
Pricegore revives brutalist 1960s townhouse in London
건축 스튜디오 프라이스고어는 런던 첼시에 있는 모더니스트 타운하우스를 개조하여 4층짜리 주택을 침실 3개가 있는 현대적인 주택으로 재구성했습니다. 프라이스고어는 넉넉하고 유연한 생활 공간을 만들어 기존 주택을 개조하는 동시에 노출된 재료 마감으로 건물의 잔혹주의적 이상을 존중하는 것을 목표로 삼았습니다. 이 스튜디오는 부지의 역사를 조사하던 중 현재의 타운하우스 구조 아래에서 과거 빅토리아 시대 주택의 깊은 기초를 발견했습니다. 발굴을 통해 콘크리트 옹벽, 주방 조리대, 창틀을 표현하여 브라질의 20세기 중반 모더니스트 주택을 떠올리게 하는 지하 1층을 설계했습니다..translate by DeepL

























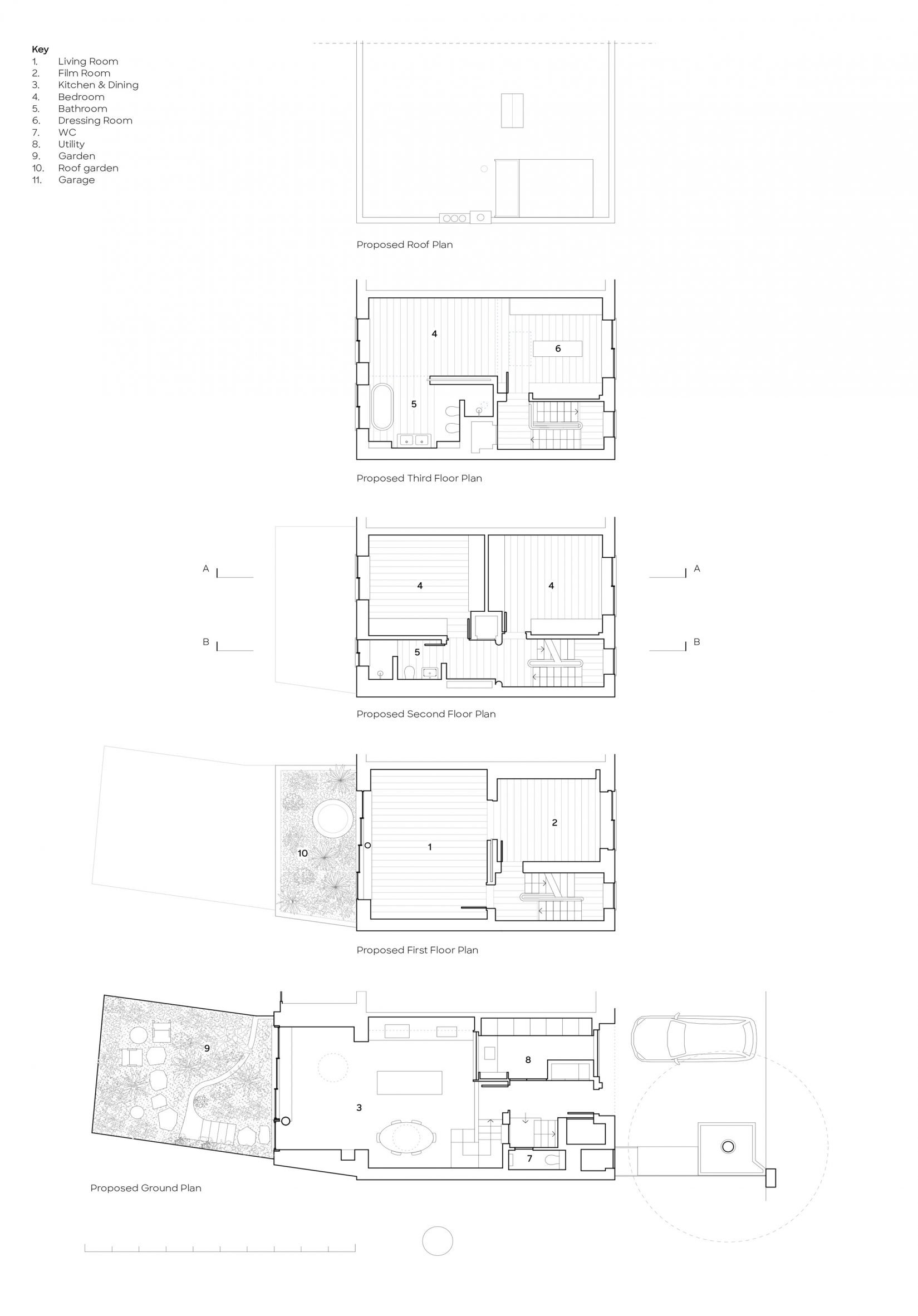
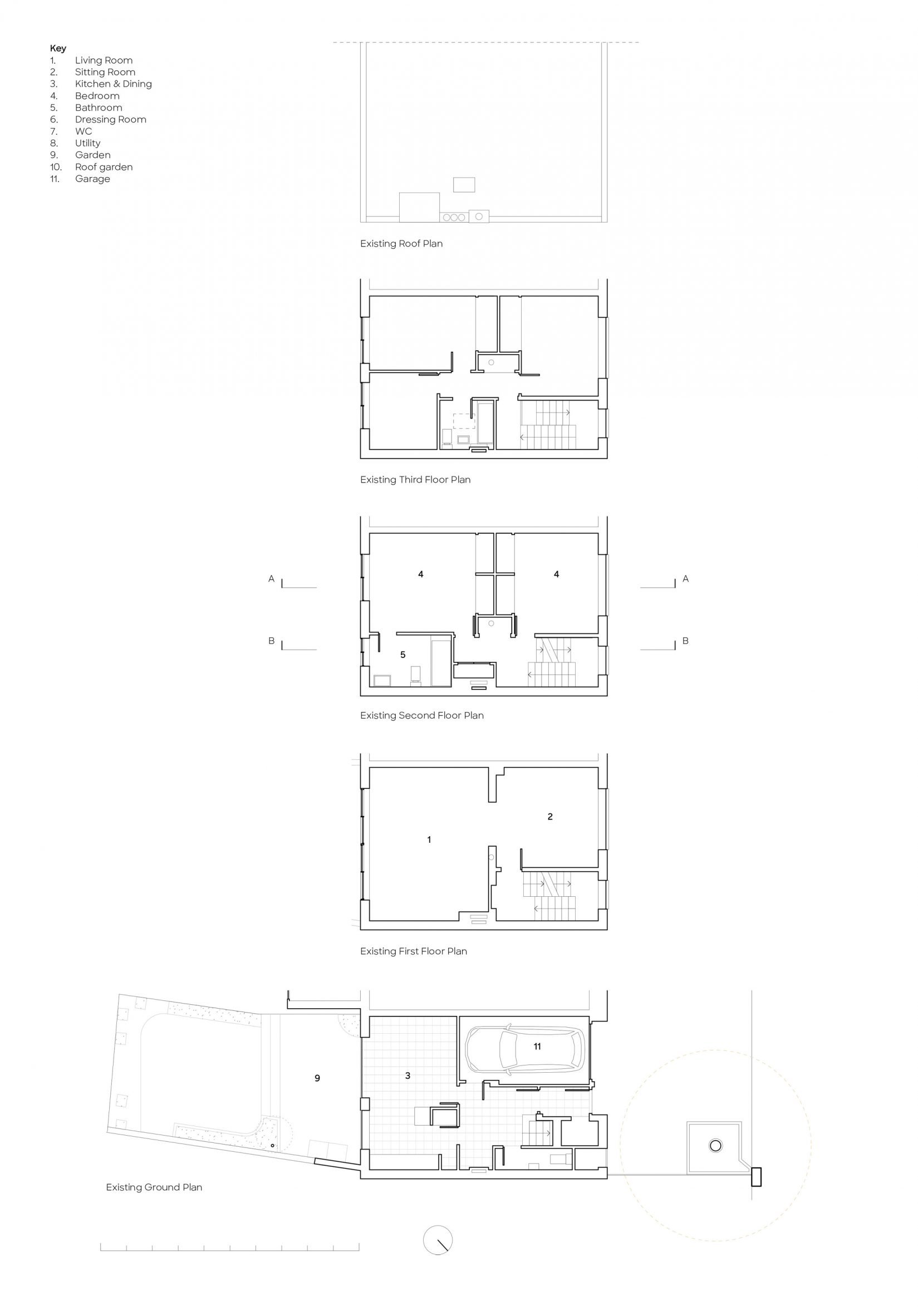
Architecture studio Pricegore has renovated a modernist townhouse in Chelsea, London, reconfiguring the four-storey house into a contemporary three-bedroom home.
Pricegore aimed to revamp the existing home by creating generous and flexible living spaces, while respecting the building's brutalist ideals with exposed material finishes.
While investigating the site's history, the studio discovered the deep foundations of former Victorian homes below the current townhouse structure. The excavation resulted in a partially subterranean ground floor designed to recall Brazilian mid-century modernist homes by expressing concrete retaining walls, kitchen worktops and window sills.
Both the ground floor and first floor living room were finished with floor to ceiling glazed partitions overlooking a green threshold of tall grasses and plants.
"[The foundations] meant we could easily excavate to recreate the old splitlevel character of the Victorian ground floor and in doing so create a kitchen and living space with high ceilings," Pricegore director Dingle Price told Dezeen.
"We sought to maximise connections to nature with a very densely planted garden that has a strong presence in the lower ground floor living space, whilst the upper floor living room looks out onto a green roof."
from dezeen
'House' 카테고리의 다른 글
| *박공지붕 [ McLaren Excell ] Hunts Green Barn (0) | 2024.01.17 |
|---|---|
| *목조 박공지붕 [ Fria Folket + Hanna Michelson ] Library House (0) | 2024.01.10 |
| *익스텐션 프로젝트 [ EME157 ] Housing Extension in C/José Bastos (0) | 2024.01.04 |
| *인피니트 라이즈 하우스 [ Earthscape Studio ] The Infinite Rise House (0) | 2024.01.02 |
| *미니멀 콘크리트 [ Federico Craig + Jesica Bava ] House in Cauquén (0) | 2023.12.26 |


