
![]() |
![]() |
![]() |
SO-IL-450 Warren
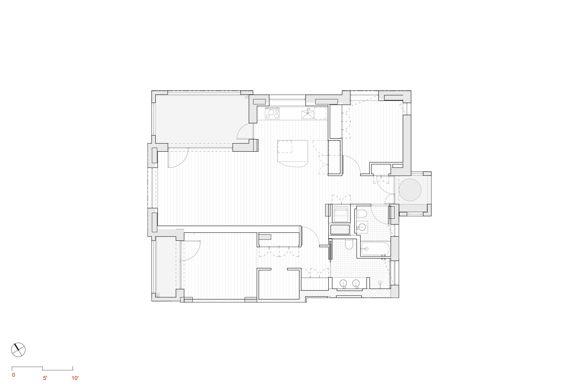
건축공간은 공용공간에서 개인공간으로 점진적으로 변화한다. 각 세대에 위치한 포치는 인근에 위치한 브라운스톤 하우스의 계단과 유사한 기능을 한다. 공용공간과 개인공간 사이에서 적절한 버퍼를 만들어 주는 역활을 한다. 그리고 각 세대는 전용 외부공간을 갖고 있다. 내부 거실로 부터 확장되는 거대한 테라스 또는 거리와 마스터침실의 버퍼를 만들어 주는 발코니를 갖고 있다.



















In the western part of Brooklyn, New York, lies the former (light) industrial neighborhood of Gowanus. For a street corner lot undergoing revitalization, architecture firm SO IL designed an apartment building. This building does not have the usual layout; the architects wanted to bring back qualities that are becoming rarer in the densifying city - light, air, (shared) outdoor space and privacy.
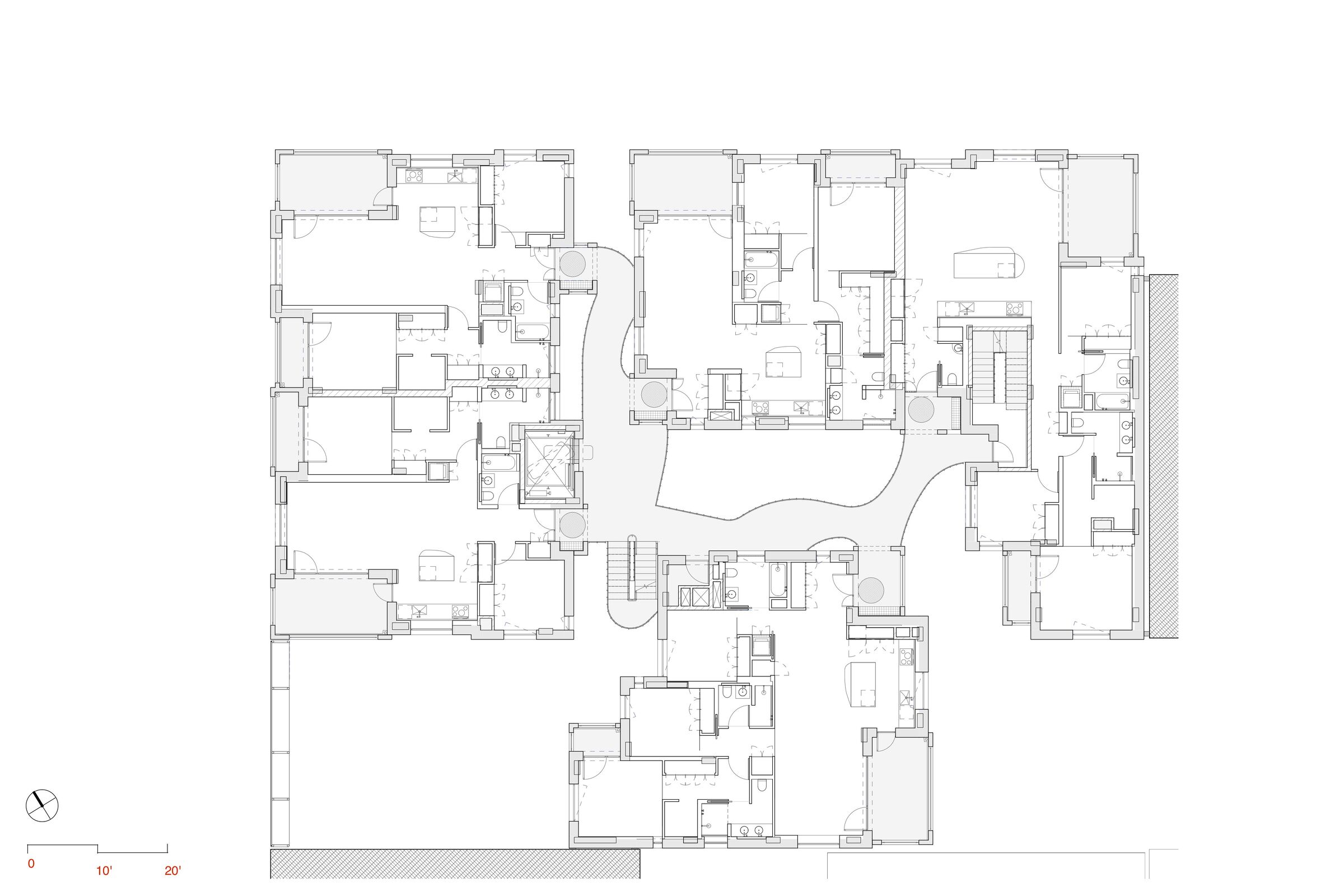
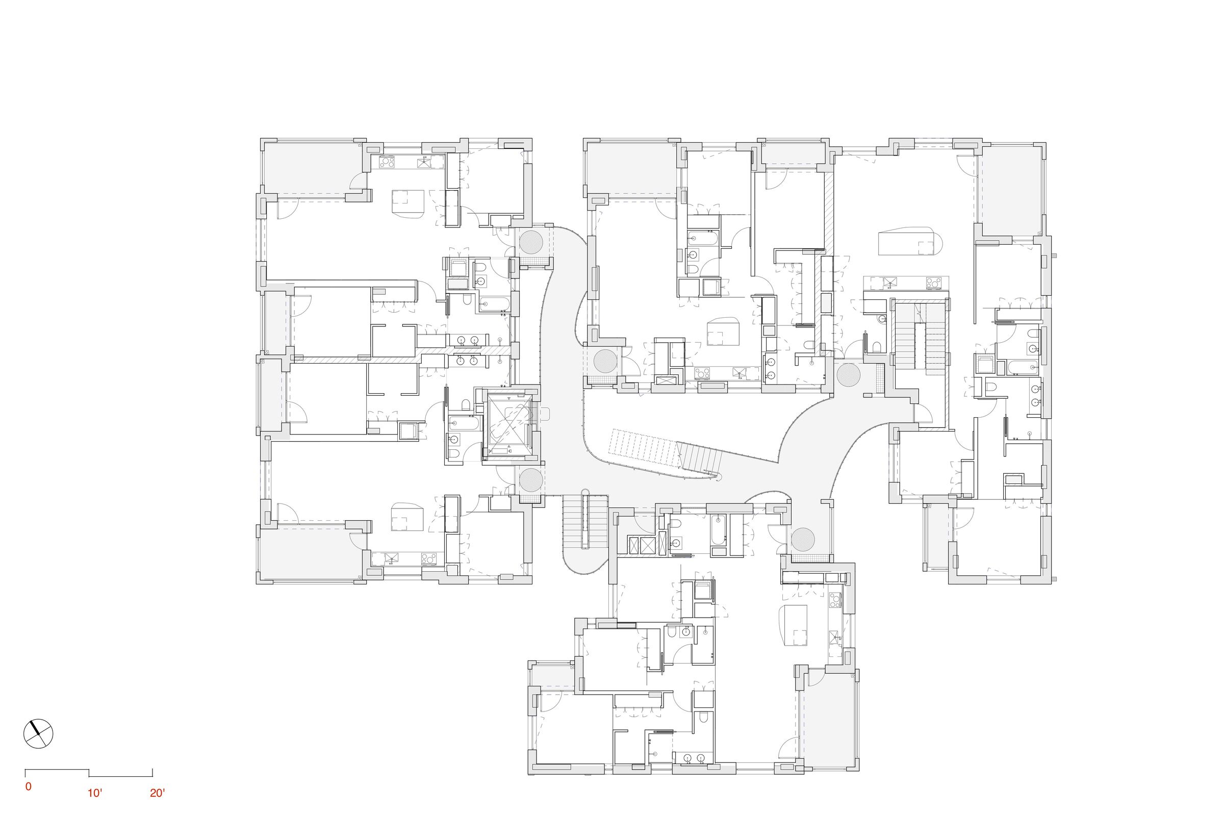
Gowanus has a wide variety of housing typologies, ranging from streets with the historic brownstone houses to low-rise residential blocks and taller apartment towers surrounded by greenery. The 450 Warren project is located on the corner of a tree-lined street with distinctive "brownstones. SO IL designed a building here for local developer Tankhouse that can be described as a cluster of eighteen efficient residential units with a high degree of privacy while providing opportunities for collectivity.
Outside on the inside
Three courtyards, provided with greenery, divide the block as a whole into a number of loosely connected volumes. A few smaller openings connect the inside of the block to the street. The resulting porosity allows light to penetrate the heart of the block and the trees in the street to be visible from within. A textured façade finish extends around the volumes, on both the street side and at the courtyards, resulting in varying shading throughout the day and in different seasons.
"A community means shared spaces for living and relaxing together, as well as informal interaction," says SO IL. In the interior area, a series of galleries, bridges and stairs provide horizontal and vertical connections, both physical and visual. Here the residents of 450 Warren can see each other walking across the courtyards, or meet in the garden or in "the shared corridor" of the building. Nets as partitions instead of walls provide vistas and light.
Gradual transition
The building has gradual transitions from collective to private spaces. Each apartment has a porch of sorts, which works similarly to the steps of the brownstone houses nearby: a zone between inside and outside, between communal and individual. The apartments also all have private outdoor spaces: large terraces as an extension of the indoor living spaces and balconies as a buffer between the street and the master bedrooms.
Thanks to the courtyards, each apartment also has windows on three or even four sides; at the same time, there are few, if any, residential dividing walls. With variation in window sizes, SO IL sought to create different atmospheres for each apartment with natural light and deliberately framed views of the courtyards and neighborhood.
Architects: SO-IL
Client: Tankhouse
Design Team: Florian Idenburg, Jing Liu, Ted Baab, Karilyn Johanesen, Deok Kyu
Chung, Alek Tomich, Danny Wei
Architect of Record: KANE A|UD
Expediter: William Vitacco Associates, LTD
Structural Engineer: Silman Associates, DPC
MEP Engineer: ABS Engineering, PLLC
Envelope Engineer: Laufs Engineering Design, LLC
Geotechnical Engineer: GZA GeoEnvironmental of NY
Lighting Designer: Lighting Workshop
Landscape: Brooklyn Grange
Photographer: Iwan Baan
from archello
'House' 카테고리의 다른 글
| *하늘중정 [ FGMF Arquitetos ] POD Pinheiros (12) | 2023.03.24 |
|---|---|
| *다섯가구, 그랑드 버티컬루버 [ Izquierdo Lehmann ] San Crescente Complex (0) | 2023.03.23 |
| *캐노피 하우스 [ AAAN ] Terphouse (0) | 2023.03.13 |
| *코지한 쇼파자리 [ Febrero Studio ] FEC Apartment (0) | 2023.03.09 |
| *레드컬러 루프 [ Steve Larkin Architects ] Ballyblake Hous (0) | 2023.03.08 |


