
새로운 핀란드 교육과정에 발맞추어 건립된 Jätkäsaari학교는 800명 재학생들을 위한 열린 교육장소를 제공합니다. 도시환경과 연장선상에 있는 외관 디자인은 내부로 자연채광을 유도하기 위해 창호계획을 은율적으로 계획하였습니다. 무엇보다 열린교육환경을 지속가능한 건축 속에서 구현가능하도록 계획되었습니다.
Based on an open architecture competition, Jätkäsaari comprehensive school of 800 pupils in Helsinki is the latest evolution of contemporary Finnish schools and designed in accordance with Finland's new national curriculum, which emphasizes e.g. phenomenon-based and multidisciplinary learning.
The school is situated at the edge of the new development, facing the busy ferry terminal, with an open view to the Baltic Sea. lt is visible from far away, welcoming travelers to Helsinki. The school stands out in the cityscape and at the same time adapts to the surrounding urban structure by carefully thought-out placement, creating clear street spaces and a sheltered school yard. The spatial organization of the school emphasizes exploratory learning and doing things together.
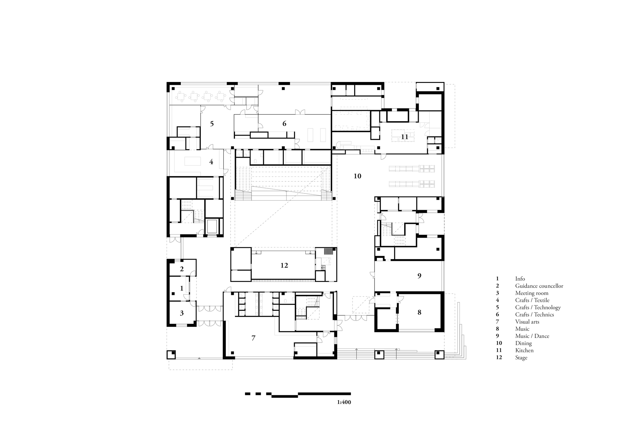
The school facilities are characterized by spaciousness and visual connections between different spaces. There are no traditional classrooms; instead, the school is divided into open "home units", connected with each other via the central lobby. The modifiable space solution can be adapted to the future needs of teaching and offers an inspiring pedagogic learning platform which grows and develops alongside its users. The building offers open and flexible spaces that encourage children to learn and collaborate.
At the time of the competition, the world famous Finnish education system was in a process of transition. Jätkäsaari School is designed entirely in accordance with Finland's new national curriculum, which emphasizes phenomenon-based and multidisciplinary learning. ln the project new kinds of spatial solutions were studied for learning spaces to address the needs of today's educational requirements.

































from archdaily