"건축은 침묵과 빛, 그리고 물질이 빚어내는 시(詩)다." -루이스 칸 (Louis Kahn)

![]() |
![]() |
![]() |
Laboratory of Architecture #3-Vachnadziani Winery
대지와 역사의 요람
이 건축물은 수세기 동안 조지아 와인 양조의 요람이었던 알라자니 계곡(Alazani Valley)에 자리한다. 코카서스 산맥의 웅장한 능선을 배경으로 끝없이 펼쳐진 포도밭은 이 건물이 이곳에 존재해야만 하는 필연적인 이유를 설명해 준다. 조지아에서 와인 양조는 단순한 생산 활동을 넘어, 일종의 의식적이고 신성한 의미를 지닌다. 그렇기에 와인의 생산과 소비, 그리고 그 모든 과정이 이루어지는 공간은 역사적 전통과 장인의 숨결이 깃든 깊은 정서적 울림을 간직하고 있다. 이러한 유산은 건축 안에서 '중세적 구축성(Medieval tectonics)'을 현대적으로 재해석한 요소들로 발현되지만, 결코 과거의 형식을 강요하지 않는 절제된 방식으로 드러난다.
기능과 형태의 이중주
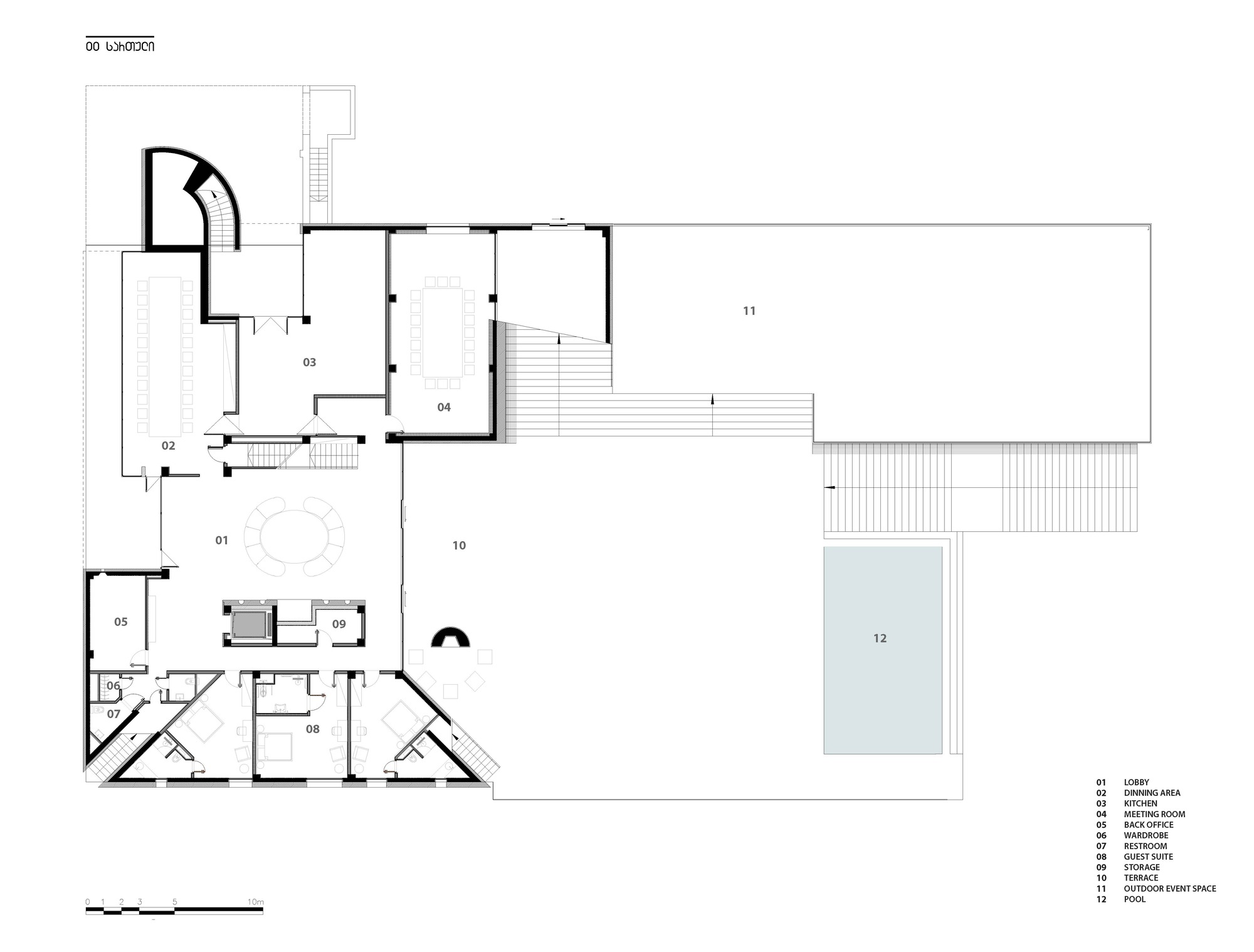
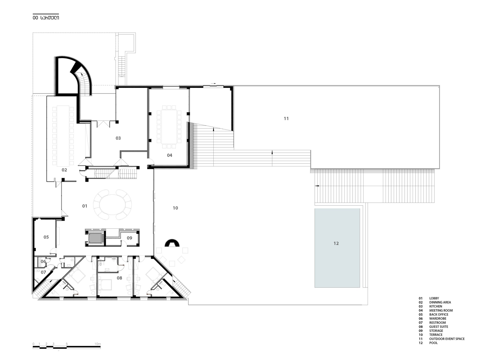
기능적으로 이곳은 와이너리인 동시에 소규모 호텔, 리셉션, 컨퍼런스 공간, 그리고 레스토랑을 아우르는 복합 공간이다. 건물은 코카서스 산맥을 향해 북쪽으로 열려 있으며, 그곳에서 시작된 웅장한 계단은 포도밭과 생산 시설이 있는 아래쪽 대지로 뻗어 내려간다. 거대한 설비가 필요한 생산 구역은 경사지형의 틈새로 교묘히 숨겨져 있어, 겉보기에 이 건물은 공장이 아니라 가내 수공업 규모의 소박하고 독립된 저택처럼 다가온다.
대립의 미학: 구축과 부유
건물은 전면에 배치된 저수지를 정면으로 마주한다. 시각적으로 이 구조물은 마치 하나의 재료로 빚어지거나 거대한 바위를 깎아 만든 단일체(Monolith)처럼 보인다. 그러나 측면으로 시선을 옮기면 건축적 테마에 따라 매스가 엄격하게 분할되어 있으며, 날카로운 '쉼표'와 같은 간극과 짙은 그림자가 그 경계를 명확히 짓는다. 건물의 조형은 조각적인 매스 덩어리와 이를 관통하는 아치형 보이드(Arched voids)의 교차로 완성된다. 이곳은 역사적인 구축법과 현대적인 구조 미학이 만나는 접점이다. 건축의 성격은 철저히 '대립적 요소(Antagonists)의 균형' 위에 기초한다. 구조물은 대지에 굳건히 뿌리박고 있는 육중함을 가지면서도, 동시에 허공에 떠 있는 듯한 가벼운 부유감을 선사한다.
재료와 감각의 전이
이러한 이분법적 긴장은 표면 처리에서도 이어진다. 한쪽 면은 손으로 빚은 듯한 거친 질감의 벽체가 대지와의 연결성을 강조하는 반면, 다른 한쪽은 매끄럽고 차가운 표면이 극명한 대조를 이루며 건물을 주변 풍경 속으로 투명하게 스며들게 만든다.
공간의 서사: 오르간과 빛
내부 공간은 2개 층 높이(Double-height)의 메인 홀을 중심으로 구성된다. 공간의 정서는 벽난로가 있는 중세의 성안 홀을 연상시키지만, 기능적으로는 방문객을 맞이하는 안락한 로비 역할을 수행한다. 이 공간의 또 다른 중심 요소는 파이프 오르간을 형상화한 계단이다. 입자 단위로 층층이 쌓인 기하학적 형태(Particle-formed geometry)를 띤 이 계단은 건물 동측 파사드의 디자인 테마를 내부로 끌어들인 결과다. 내부는 전반적으로 단색조(Monochrome)를 유지하되, 나무와 회반죽(Plaster)의 물성을 조화롭게 매치하여 깊이감을 더했다. 여기에 조지아 프레스코화의 전통에서 영감을 받은 작은 색상 포인트들이 차분한 공간에 생기를 불어넣으며, 호텔 객실은 묵직한 주름 장식(Drapery)을 활용하여 내밀하고 아늑한 분위기를 완성한다.
Write by Claude & Jean Browwn




































The building is located in the Alazani Valley, a centuries old, traditional cradle of the region's winemaking, set against the backdrop of the Caucasus Mountain range and vineyards.
Winemaking in Georgia holds a ritualistic and sacred significance. Therefore, matters related to wine, such as its production, consumption, or the places where this process occurs, are surrounded by an emotional climate that cannot bypass historical tradition, including the builder's art. This heritage manifests itself in the form of paraphrased elements of medieval tectonics, yet in each case, without insisting.
Functionally, this is a winery that also encompasses a small hotel, a reception area, a conference space, and a restaurant. The building is oriented northward toward the Caucasus range, from where a grand staircase descends into the vineyard and factory zone. The production section is concealed within the slope of the terrain, creating the impression that this is not a factory, but a modest, freestanding estate of domestic scale.
The building is frontally oriented toward the reservoir arranged before it. Visually, the structure appears carved from a single material or a large boulder; however, its sides are strictly divided by architectural themes, separated by sharp "pauses" of volume and dark shadows.
The form is shaped by sculptural masses and monolithic volumes intersected by arched voids, where historical and modern constructive tectonics meet. The architectural character is founded on a balance of antagonists: the structure is simultaneously firmly grounded on the earth and "suspended" in the air.
The dichotomy continues in the surface treatment: on one side, there are hand sculpted, tactile walls that emphasize the connection to the earth, while on the other, glossy, cold surfaces create a contrast and "dissolve" the building into the environment. The interior is organized around a main, double-height space. In content, this room is a medieval castle hall with a fireplace, while functionally, it serves as a comfortable lobby.
The second central element of this space is the staircase, which attempts to resemble an organ; however, its particle-formed geometry represents a continuation of a similar theme found on the building's eastern facade. The interior is monochrome, though composed of several elements, such as the matched textures of wood and plaster. Additionally, the inclusion of small colored inserts, which determine the muted coloration, is dictated by the Georgian fresco tradition. In the hotel rooms, a boudoir atmosphere formed by drapery is notable.
from archdaily


