"우리의 집은 우리의 영혼을 담는 그릇이다."— 알랭 드 보통 (Alain de Botton)

![]() |
![]() |
![]() |
"도심 속 협곡? 아니, 도심 속 모험!" MAD Architects-One River North
One River North는 덴버의 리버 노스 아트 디스트릭트 중심부에 위치한 복합 개발 건축물로, MAD Architects가 설계한 자연과 도시의 조화를 이룬 혁신적인 프로젝트입니다. 이 건축물의 가장 눈에 띄는 특징은 유리 파사드를 가로지르는 ‘캐니언’ 구조로, 자연의 지형을 연상시키며 도심 한복판에서 자연을 느낄 수 있는 독특한 공간을 제공합니다. 주민들은 마치 계곡 속을 걷는 듯한 경험을 하며, 6층에서 9층까지 이어지는 녹지와 테라스에서 자연과 상호작용할 수 있습니다. One River North는 덴버의 자연적 요소와 도시 생활을 통합한 혁신적인 시도를 통해, 거주자들에게 자연과 함께하는 일상을 제공합니다.
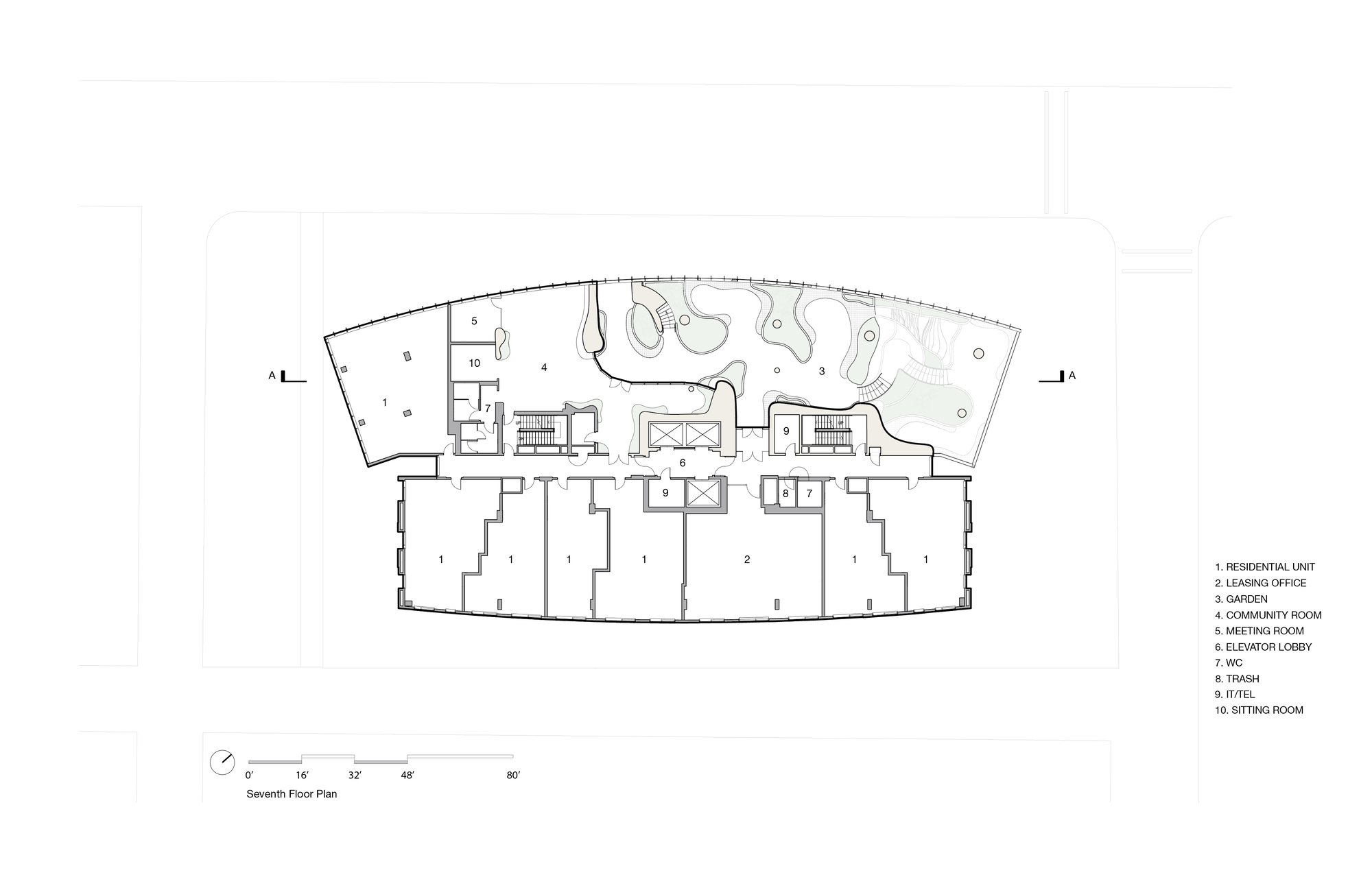
2.1. 프로젝트 개요
One River North는 16층에 걸쳐 총 187개의 임대 유닛과 9,000제곱피트의 상업 공간을 포함한 복합 건축물입니다. 덴버의 리버 노스 아트 디스트릭트 중심부에 위치해 있으며, Ma Yansong을 주축으로 한 MAD Architects가 설계를 맡았습니다. 이 건물은 콜로라도의 산악 지형과 협곡에서 영감을 받은 자연과 도시의 조화를 상징하는 혁신적인 건축물입니다.
2.2. 설계 컨셉
One River North의 가장 독특한 설계 요소는 유리 파사드를 가로지르는 캐니언 구조입니다. 이 구조는 자연의 계곡을 연상시키며, 주민들이 마치 자연 속을 걸어가는 것 같은 경험을 제공합니다. 또한, 건물 외관에 사용된 자연적인 곡선과 내부의 녹지 공간은 콜로라도의 산과 협곡에서 영감을 받아 설계되었습니다.
2.3. 자연과의 통합
이 건축물의 디자인은 자연과 도시의 융합을 주제로 하고 있습니다. 6층에서 9층까지 이어지는 캐니언 트레일은 자연과 도시의 연결을 상징하며, 건물의 주요 녹지 공간과 테라스는 주민들이 자연과 상호작용할 수 있도록 설계되었습니다. 이러한 설계는 자연 속에서 생활하는 경험을 도심 한복판에서도 제공하려는 설계 의도를 명확히 보여줍니다.
3.1. 소재 및 질감
One River North는 유리와 콘크리트를 주요 재료로 사용하여 현대적이면서도 자연스러운 질감을 강조했습니다. 특히, 자연 침식된 바위처럼 보이는 곡선형 콘크리트 구조는 자연의 형상을 연상시키며, 유리 파사드와의 대비를 통해 건물 외관에 독특한 질감을 부여합니다.
3.2. 기술 혁신
One River North는 복잡한 곡선 형태의 슬래브와 유리 파사드를 구현하기 위해 고도의 기술적 혁신을 필요로 했습니다. 또한, 지속 가능한 설계를 실현하기 위해 내구성 있는 식물 배치와 물 순환 시스템을 통해 환경 친화적인 건축물을 완성했습니다.
4.1. 주거와 상업 공간의 조화
건물 내부에는 주민들이 이용할 수 있는 피트니스 센터, 공용 라운지, 야외 좌석 공간 등이 배치되어 있으며, 이러한 공간들은 거주자들이 일상에서 자연과 교류하고, 사회적 상호작용을 할 수 있는 장을 제공합니다. One River North는 단순한 주거 공간을 넘어, 자연 속에서의 삶을 도심에서도 경험할 수 있도록 설계되었습니다.
4.2. 커뮤니티와 웰빙
이 건축물은 커뮤니티의 상호작용과 웰빙을 강조하며 설계되었습니다. 자연을 중심으로 한 설계는 주민들의 정신적, 신체적 건강을 지원하며, 도시 생활에서도 자연과의 긴밀한 관계를 유지할 수 있게 합니다.
5. 미래 건축 트렌드와의 연계
One River North는 지속 가능한 건축과 자연과의 통합을 주제로 한 미래 건축 트렌드와 깊은 연관이 있습니다. 자연과의 조화를 이루는 이 프로젝트는 도심 속에서 자연을 경험할 수 있는 새로운 건축 모델을 제시하며, 친환경 건축물이 도시 개발의 중요한 요소로 자리 잡을 것임을 시사합니다. 이 건축물은 미래의 지속 가능한 건축 설계 방향에 중요한 역할을 할 것으로 기대됩니다.
6. 결론
One River North는 덴버 도심 속에서 자연과 조화를 이루는 혁신적인 건축물로, MAD Architects의 디자인을 통해 도시 생활 속에서도 자연과의 연결을 경험할 수 있는 복합 건축물로 자리잡았습니다. 이 프로젝트는 지속 가능한 건축과 자연을 통합한 설계로 주목받고 있으며, 미래 건축의 새로운 방향성을 제시합니다. 도시 생활의 편리함과 자연 속의 삶을 동시에 제공하는 이 건축물은 앞으로의 건축 설계에서 중요한 모델이 될 것입니다.
Write by ChatGPT & 5osa


























A crack of natural terrain carves through the 16-story glass facade of One River North, (ORN), a new mixed use development near the center of Denver, Colorado's River North Art District (RiNo). More than just an apartment building, One River North is a vertical landscape for its residents to wander as if hiking in the mountains. "Imagine living in a building yet feeling as though you're immersed in a natural landscape—like living within a canyon itself," says MAD Principal Architect, Ma Yansong.
As residents traverse the building's canyon trail from the 6th to the 9th floor, they become immersed in curated environments inspired by Colorado's foothill and canyon ecosystems, guided by the sounds of cascading water that is audible from the street below. With One River North, MAD seeks to reimagine urban living by integrating natural experiences into modern architecture, creating immersive living experiences that foster community and strengthen residents' connections to each other and the natural world.
This innovative approach is in response to the environmental conditions of Denver, a city known for the rugged mountains and deep canyons that surround its urban area. Within the city, the River North Art District (RiNo) has recently experienced a remarkable transformation. Once an industrial hub, it has since evolved into a thriving center for creators, artists, and outdoor enthusiasts that together reinvigorate the creative and active culture of Colorado.
One River North addresses Denver's need for high density urban housing while offering an expanded lifestyle centered on wellness and accessibility in a safe, walkable neighborhood. MAD's design reflects the city's active culture by encouraging exploration, well-being, and a connection to nature that strengthens its residents' ties to their surroundings and to one another. The building features 187 rental units spread across 15 floors, along with a 9,000-square-foot ground-floor retail space that seamlessly blends into the surrounding landscape and streetscape. Exterior materials and plantings flow into the interior, reinforcing the connection between indoors and outdoors.
The soft surfaces of the Canyon—a carved-out, four story amenity space inspired by natural erosion and designed to evoke a slot canyon, were designed by MAD to contrast the clean geometric lines of the building's massing. This feature includes over 13,000 square feet of landscaped terraces that appear to hang in open space, offering some of the city's most breathtaking views, along with water elements that foster a strong connection between residents and the natural environment. The canyon-like structure running through the façade creates an immersive, natural experience, merging indoor and outdoor spaces and blurring the boundaries between nature and architecture.
The canyon inspired amenity area includes outdoor seating, shared rooms, and fitness facilities, all designed to cultivate engagement and foster meaningful connections. Drawing inspiration from Colorado's diverse biomes, its landscape design reflects the state's natural conditions and unique plant life which change over the course of the four seasons. The landscape has been thoughtfully curated with resilient plant species to ensure that, over time, the greenery will flourish, transforming the canyon-like feature into a lush, thriving environment that enhances the residents' experience and contributes to the surrounding community.
The Canyon climbs across the building's facades to culminate at a landscaped rooftop terrace 16 stories above street level. This alpine inspired space features a pool, spa, and garden that provide unobstructed views of the Rocky Mountains and the Denver skyline.
One River North has earned Fitwel certification, a prestigious recognition that highlights its commitment to promoting the physical and mental well being of its residents. This certification, awarded to fewer than 1,000 buildings worldwide, reflects the project's innovative approach to mixed-use development. By offering a thoughtfully curated, immersive living experience that emphasizes placemaking and fosters a sense of community, One River North sets a new standard for urban living focused on human health and wellness.
from archdaily


